1112 Schwarzplan Blau
Das Gebäudeensemble wird weiterhin über den Mythenquai erschlossen
Der Neubau schmiegt sich um das zentrale denkmalgeschütze Gebäude
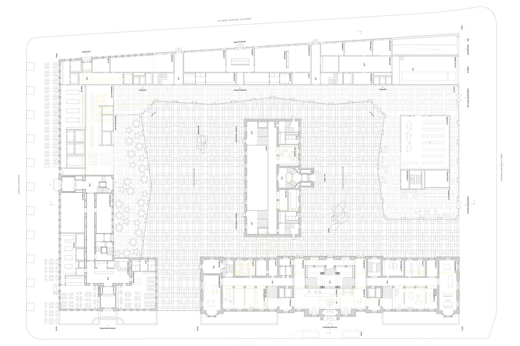
Die bestehende Eingangshalle wird zur Empfangslobby ausgebaut
1112 Bild06
Grundriss Erdgeschoss
Grundriss 2.Obergeschoss
Grundriss 3.Obergeschoss
Längsschnitt

Wettbewerb Zurich Corporate Redevelopment, Zürich

Das Projekt fügt sich in die Reihe grosser Bauten am Seeufer, die diesen Teil des Quartiers Enge prägen, besetzt jedoch das Grundstück nicht monolithisch, sondern als Ensemble von Gebäuden unterschiedlicher Epochen. Mit einem zentralen Hof, der durch das freigestellte historische Gebäude in zwei Bereiche gegliedert und über Durchgänge mit dem umgebenden Strassenraum verbunden ist, stellt es eine offene Stadt in der Stadt dar. Der Versicherungskonzern präsentiert sich mit einem einladendem, urbanen Hauptsitz, der sich zur Kontinuität des Quartiers bekennt und zugleich ein Stück Geschichte des Unternehmers anschaulich repräsentiert.

Das prächtige historische Gebäude wird behutsam restauriert und als Landmark und zentrale Adresse für Besucher aufgewertet. Es erhält eine Vorfahrt und eine erneuerte, grosszügige Eingangshalle, die sowohl das Gebäude als auch den Hof (und damit den gesamten Komplex) erschliesst.

Verfahren
eingeladener Projektwettbewerb, 2. Preis
Bauherrschaft
Zurich Insurance Company Ltd
Kenndaten
GF: 43 000 m²
GV: 159 000 m³
Zeitraum
2012
Verfasser
Baukontor Architekten mit Müller Illien Landschaftsarchitekten, Dr.Schwartz Consulting (Statik), Waldhauser Haustechnik
Team
Jens Bohm, Vittorio Magnago Lampugnani, Mark Ammann
Fiona Scherkamp
Visualisierung
Raumgleiter AG
Röntgenstrasse 10, 8005 Zürich + 41 43 960 24 50 mail@baukontorarchitekten.ch Instagram Pinterest